Belvedere Langhe
Via Pietro Donadei n.13
SCHEDA TECNICA
Posizione geografica: Comune Belvedere Langhe, tra Dogliani e Murazzano.
Indirizzo: inizio paese Belvedere, incrocio tra Strada Provinciale 661 e via Pietro Donadei.
Destinazione d'uso: Albergo -ristorante - residenziale (previa richiesta delle autorizzazioni necessarie)
Panoramicità: ottima, stupenda. Impianti: dotato di ascensore in ottime condizioni, impianti elettrici e antincendio a norma. Infissi: parte abitativa in PVC doppio vetro, corridoi in legno/alluminio Stato manutentivo interno: buono, bagni in ottime condizioni. Se l'investimento è mirato all'accoglienza/struttura ricettiva, allora necessita soltanto di una mano di tinteggiatura. Stato manutentivo esterno: buono, necessita solo di un rinfresco nelle rifiniture e in alcuni minimi punti di intonaco. Stato del sistema strutturale: a vista ottimo.
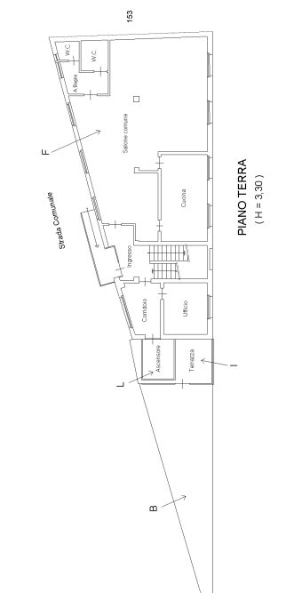
Piano terra composto da salone comune, bagni, cucina industriale, ufficio. Piano primo con 8 vani tipo camere quasi tutte con lavandino all'interno, 4 bagni di cui uno per disabili. Piano secondo con 5 camere (alcuni con lavandino all'interno), 3 bagni di cui 2 per disabili. Piano sotterraneo: da un lato l'affaccio è sulla strada Pietro Donadei, mentre l'altro lato si affaccia verso la Strada Provinciale. E' dotato oggi di vani di servizio come ufficio, dispensa, lavanderia, spogliatoi, bagni, centrale termica, magazzino, ecc. Collegato internamente con i piani superiori. Ogni piano è dotato di porte di sicurezza con maniglione apertura a spinta.
Certificazione energetica: D


















